START
  • BEISPIELE
  • LEISTUNG
  • KONTAKT
  • LENIGERS WELT
brand-logo START
  • BEISPIELE
  • LEISTUNG
  • KONTAKT
  • LENIGERS WELT
brand-logo START
  • BEISPIELE
  • LEISTUNG
  • KONTAKT
  • LENIGERS WELT
brand-logo START
  • BEISPIELE
  • LEISTUNG
  • KONTAKT
  • LENIGERS WELT

WIE DIE „ENTSCHACHTELNDE“ GESTALTUNG EINER ARZTPRAXIS AUSSIEHT

WIE DIE „ENTSCHACHTELNDE“ GESTALTUNG EINER ARZTPRAXIS AUSSIEHT

WIE DIE „ENTSCHACHTELNDE“ GESTALTUNG EINER ARZTPRAXIS AUSSIEHT

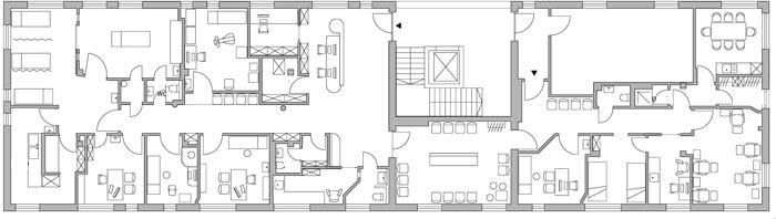
Der Grundriss: lang und schmal. Die Fenster: nicht besonders groß. Die Flure: gestreckt und ohne Tageslicht. Welche Farben kommen in Betracht? Natürlich – Gelb, Orange, Ocker. Sonnige Farben und ein heller Boden fangen bei der Gestaltung dieser Arztpraxis die ungünstigen Lichtverhältnisse auf und schaffen eine freundliche Atmosphäre.

Empfang onkologische Praxis

Optimaler Grundriss in dieser Arztpraxis: ein Riegel mit geballter Kraft

Dazu habe ich hier auf verschachteltem Raum die Funktionsräume untergebracht. Das Ergebnis bei der Praxisgestaltung in dieser internistischen Arztpraxis in Beilngries ist ein Grundrissriegel, der es in sich hat: geballte Kraft, die funktioniert – für die Mitarbeiter, die nur kurze Wege zurücklegen müssen. Und genauso für die Patienten, deren Wartebereich so großzügig wie möglich gestaltet wurde. Und für die es hier Rückzugsorte gibt, an denen sie mit der Farbgestaltung ein wenig die Sonne in ihre Herzen lassen können.

Wartezimmer onkologische Praxis
Aufwachraum Endokopie

Sind Sie neugierig geworden? Dann tauchen Sie doch tiefer ein in die Welt von Leniger Praxisplanung und lesen Sie weiter, zum Beispiel zum Thema Planung Zahnarztpraxis

Impressum

Datenschutzerklärung

copyright Bernhard Leniger-Salley 2021